项目介绍 | ABOUT THE PROJECT
斯特公寓(Chesterton House)位处伦敦自治市Harrow on the Hill,建筑物前身是区内图书馆。提供开放式,1房,2房及3房,装潢选料上乘,超卓交通网络,便捷前往伦敦市中心。
楼盘附近有伦敦着名大学学府林立,Harrow School – 与斯特公寓相距约1.2公里,St Anne’s和St Georges购物中心与斯特公寓相距约650米 – 作为Harrow的主要购物中心,引入各式各样商店进驻,由大型的国际品牌商店到精品商店,务求迎合大众的口味。
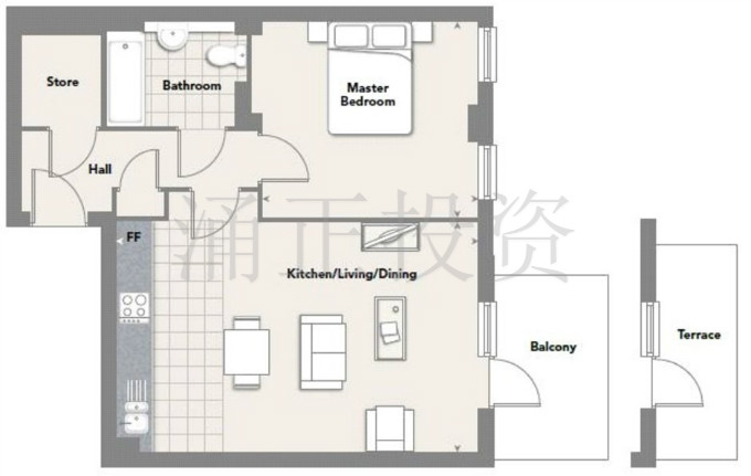
斯特公寓的内部规格是真正开辟了新天地。巧妙地使用布局和灯光增强了空间感,所选灯具和配件的质量远高于您在新公寓中的预期。了解当今的城市生活方式,每间公寓都设有私人露台或阳台 – 即使是适度的私人户外空间也会对日常生活产生重大影响。
斯特公寓附近有几个健身俱乐部以及网球和高尔夫设施,附近伦敦著名大学学府林立。
一切都近在咫尺 – 哈罗区内部分地方多年来变化不大,其专卖店,茶室和酒吧,保留了它的魅力和特色。距离St Anne’s和St Georges两个购物中心仅有几步之遥。拥有各式各样的商店和超市。
周边交通:斯特公寓位置便利,距离Harrow on the Hill地铁站仅约500米步行路程,位于大都会线上,可直达Baker Street和King’s Cross。Chiltern铁路公司还提供前往伦敦的火车服务。哈罗巴士站也在附近,毗邻地铁站、Kenton火车站位于Bakerloo线上,提供前往West End和City的地铁服务,以及伦敦地上铁亦有列车直达前往Euston。
从Harrow on the Hill地铁至以下地点:
3站 Wembley Park Station
5站 Baker Street Station
5站 Regents Park Station
8站 Bond Street Station
7站 Paddington Station
7站 Oxford Circus Station
8站 Kings Cross St Pancras Station
11站 Waterloo Station
12站 Bank Station
付款流程:预定单位时付定金£2,500;21日内付房款的5%交换合同;交换合同后3个月各支付房款5%;交换合同后6个月各支付房款5%;交房时付尾款。
地理位置 | GEOGRAPHICAL POSITION
购买流程 | PURCHASE PROCEDURE

推荐楼盘 | RECOMMENDED PROJECTS
-

格林绿庭(Deptford Foun...
价格: ¥600万起
地区: 泰晤士河南岸Deptford -

科黛花园...
价格: ¥350万-650万
地区: 伦敦北四区 -

西林皇后苑...
价格: ¥400万起
地区: 伦敦西南五区金斯顿 -

柏郦(White City Livi...
价格: ¥560万起
地区: 西伦敦二区 -

荣冠雅苑(one crown pla...
价格: ¥870万起
地区: 伦敦金融城 -

雷顿绿庄(Green Park Vi...
价格: ¥420万-850万
地区: 雷丁Reading -

厦坤公寓...
价格: ¥170万起
地区: 卢顿Luton -

沃科公寓(New Stratford...
价格: ¥376万-810万
地区: 斯特拉福德Stratford -

潘通公寓(Pontoon Reach...
价格: ¥315万起
地区: 纽汉姆Newham -

文苑华府(Postmark)...
价格: ¥880万起
地区: Mid City -

顾德莱公寓(Goodluck hop...
价格: ¥640万起
地区: Leamouth里莫斯半岛 -

翠沃公寓(Three Waters)...
价格: ¥340-650万
地区: Bromley-by-Bow -

凤起家园(Oval Village)...
价格: ¥480万起
地区: 伦敦Vauxhall -

漫丽景园(Eastman Villa...
价格: ¥280万起
地区: 哈罗Harrow -

海斯湾景苑(Hayes Villag...
价格: ¥280万起
地区: 伦敦西郊Hayes 希思罗机场 -

菲尔德别苑(Trent Park)...
价格: ¥500万起
地区: 伦敦特伦特公园 -

马雷花园Marleigh...
价格: ¥300万起
地区: 剑桥 -

艾斯奔中心Aspen...
价格: ¥610万起
地区: 伦敦东二区金丝雀码头 -

Chimes...
价格: ¥1000万起
地区: Westminster -

剑桥骑士花园Knights Park...
价格: ¥230万起
地区: 剑桥Cambridge -

布莱德庭Brigade Court...
价格: ¥700万起
地区: 伦敦 -

斯特灵名邸Sterling Plac...
价格: ¥300万起
地区: 伦敦 -

达马克大厦Damac Tower ...
价格: ¥700万起
地区: 伦敦南岸九榆树区 -

Bow Green...
价格: ¥300万起
地区: 伦敦东2区 -

Wandsworth Mills...
价格: ¥400万起
地区: 伦敦西南2区 -

Dagenham Green...
价格: ¥270万起
地区: 伦敦东三区Barking -

BERMONDSEY PLACE...
价格: ¥500万起
地区: 伦敦东2区SE1 -

凯德庄园(Kidbrooke Vil...
价格: ¥330万-1000万
地区: 伦敦东南三区 -

威顿绿庭(Prince of Wal...
价格: ¥680万起
地区: 巴特西公园 -

海德西苑(West End Gate...
价格: ¥800万-2000万
地区: 帕丁顿paddington -

帕顿公馆...
价格: ¥825万起
地区: paddington帕丁顿 -

250 city road ...
价格: ¥500万起
地区: 伦敦市中心一区 -

绿野湖滨花园(woodberry d...
价格: ¥500万起
地区: Hackney区 -

迪墨公寓...
价格: ¥160万-260万
地区: 卢顿luton -

亨登水岸(Hendon Waters...
价格: ¥408万-552万
地区: 伦敦北三区











沪公网安备 31010102002571号